Skip to main content
Photos and Floorplans (9)

Liten The Loughton by Toll Brothers

  • 1 Bed
  • 1 Bath
  • 1,155 SF
Photos and Floorplans (9)
  • Home Type Condo/Townhome/Attached
  • Stories 2
  • Garage Spaces 1 - 2
  • Builder Toll Brothers
  • Neighborhood The Loughton by Toll Brothers
  • Village Summerlin Centre
Interior Details
Bedrooms & Bathrooms
  • Bedrooms: 1-2
  • Bathrooms: 1-2

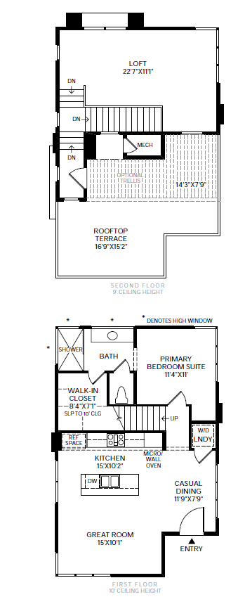
The Liten offers stylish, efficient living with thoughtful spaces across two levels. On the first floor, an open layout connects the great room, casual dining area, and kitchen with a center island—ideal for daily living and entertaining. The primary bedroom includes a walk-in closet and a private bath with a shower and water closet. Upstairs, a spacious, versatile loft leads to a gorgeous rooftop terrace with panoramic views and open-air living space.

Location

Nestled in the picturesque foothills of the Spring Mountains and adjacent to Red Rock National Conservation Area, Summerlin sprawls the western edge of the Valley overlooking the most dynamic city on Earth: Las Vegas, Nevada. More than 150 miles of trails are carved into the desert oasis, meandering through hundreds of parks and the most diverse and stunning selection of homes in the city – all with easy access to the 215 Beltway.

Summerlin is 22,500 acres of master-planned perfection, just waiting for life’s most beautiful moments.

View in Google Maps